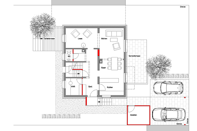
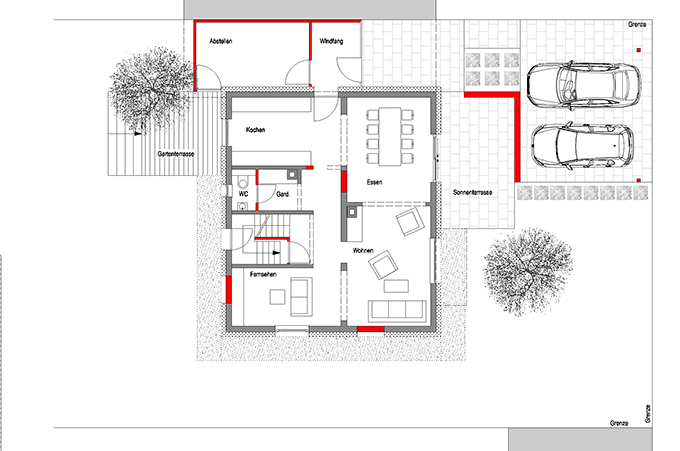
Umbau mit Anbau eines Einfamilienwohnhauses in Gerlingen
Energetische Sanierung mit Förderung durch die L-Bank und die BAFA
Wohnfläche: 180,00 m2, Nutzfläche: 54,00 m2
Planung: Juli 2015, Bauzeit: Januar 2016 - Mai 2016
Baugenehmigung, Planung und Realisierung



