Wohnbebauung
in Konstanz
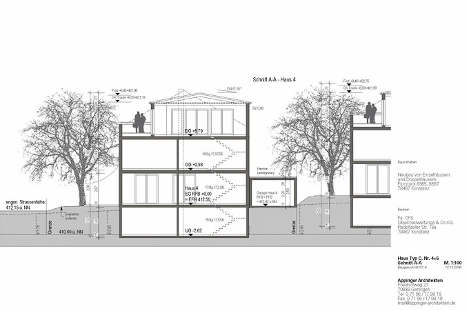
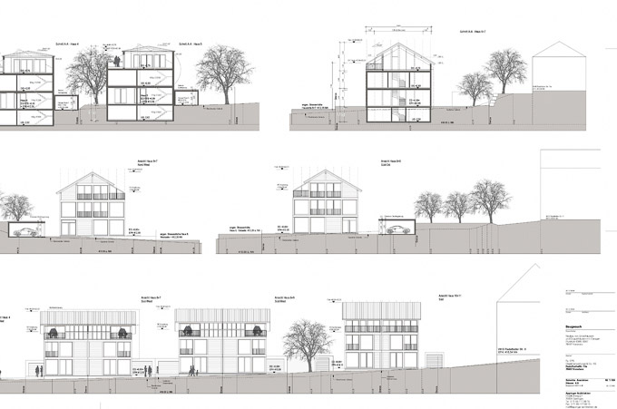
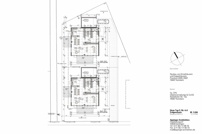
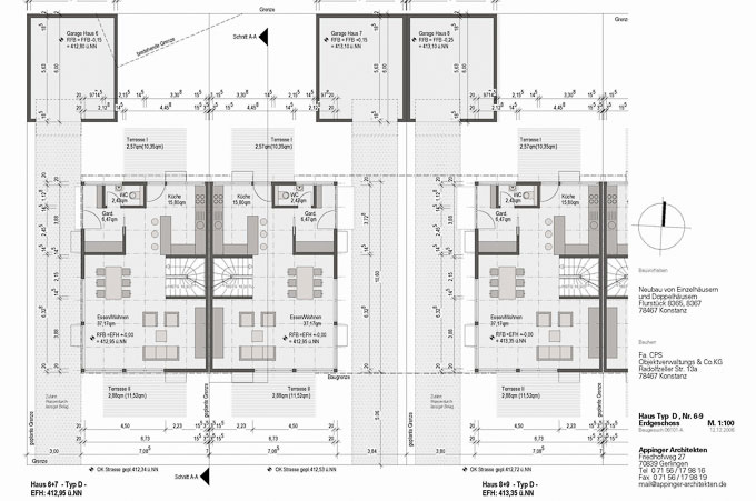
Neubau von 3 Einzelhäusern und 4 Doppelhäusern in Konstanz
Wohnfläche Häuser: je 170-250 m²
Planung: 2006/2007
_Entwurf
_Genehmigungsplanung
Über das bauherrneigene Grundstück in Konstanz trat ein neuer Bebauungsplan in Kraft, der eine größere Ausnutzung der Grundstücke ermöglichte. Es kam den Bauherren die Überlegung die Grundstücke selbst zu bebauen und zu vermarkten.
Aufgabe war für das obere Preissegment großzügige, anspruchsvolle Häuser von unterschiedlichen Typen anzubieten. Geplant wurden 3 Einzelhäuser und 8 Doppelhaushälften mit großzügigen, durchlässigen und anspruchsvollen Grundrissen, in drei unterschiedlichen Grundtypen.




